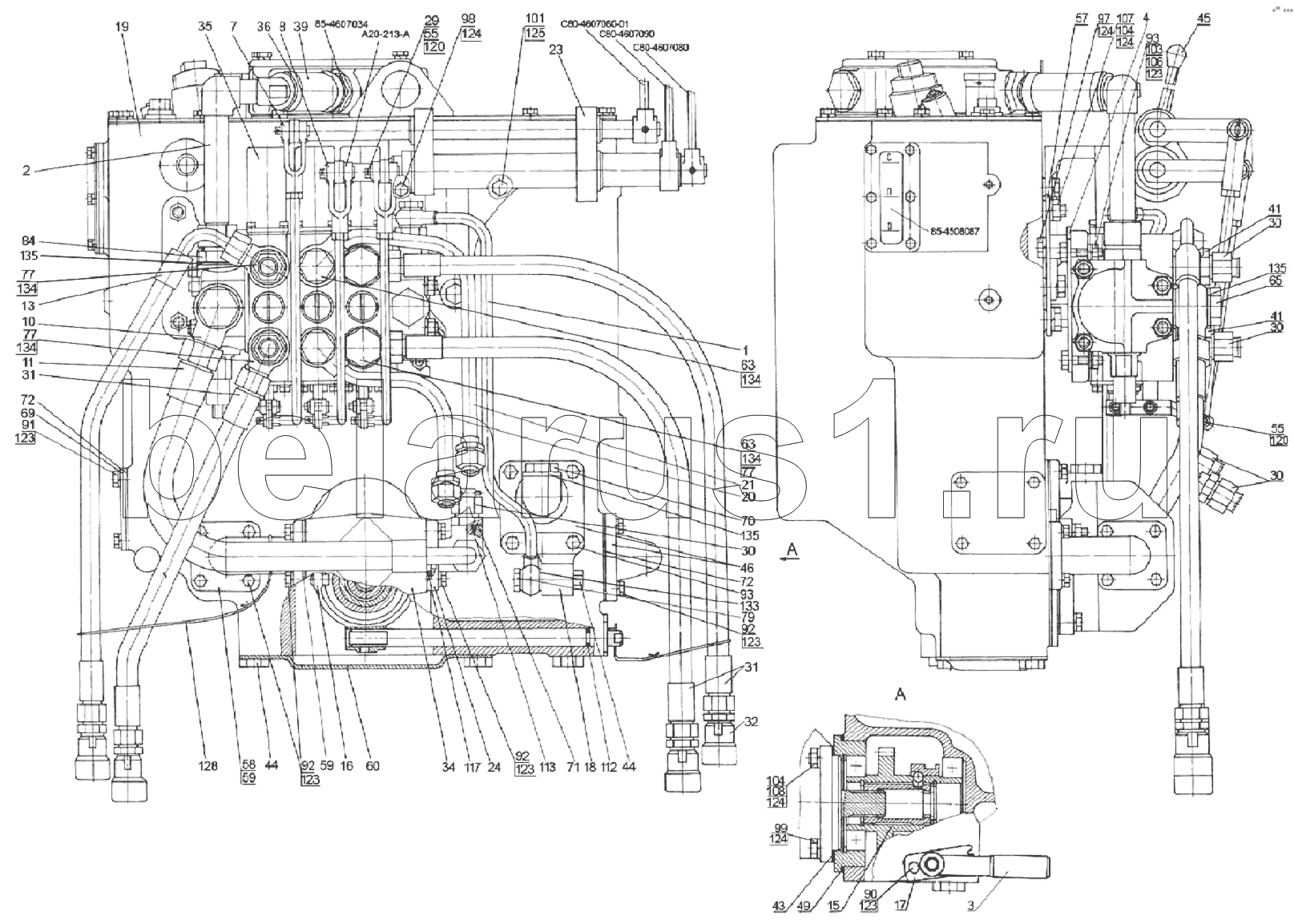
Каталог запасных частей к технике: МТЗ 892. Корпус гидросистемы Р85-4600015-01

А20-213-А
С80-4607090
С80-4607080-01
С80-4607080
85-4607034
1
2
3
4
7
8
10
11
13
15
16
17
18
19
20
21
23
24
29
30
30
30
30
31
31
32
32
34
34
34
34
34
35
35
36
39
41
41
43
44
44
45
46
49
55
55
57
58
59
59
60
63
63
65
69
70
71
72
72
77
77
77
79
84
90
91
92
92
92
93
93
97
98
99
101
103
104
104
106
107
108
112
113
117
120
120
123
123
123
123
123
123
124
124
124
124
124
125
128
133
133
134
134
134
134
134
135
135
135
135
Позиция на иллюстрации | Заводской номер детали | Название детали | |
---|---|---|---|
Р85-4600015-01 | Р85-4600015-01 | Корпус гидросистемы | |
А20-213-А | А20-213-А | Заказать | Вилка |
С80-4607090 | С80-4607090 | Рычаг | |
С80-4607080-01 | С80-4607080-01 | Рычаг | |
С80-4607080 | С80-4607080 | Рычаг | |
85-4607034 | 85-4607034 | Штуцер | |
Р85-4600015-04 | Р85-4600015-04 | Корпус гидросистемы | |
1 | Р85-4607110 | Труба | |
2 | Р85-4607425 | Труба | |
3 | 85-4604040 | Рукоятка | |
4 | Р1221-4607030 | Кронштейн | |
7 | Р1221-4607260-01 | Тяга | |
8 | Р1221-4607260 | Тяга | |
10 | 952-4607080 | Заказать | Штуцер |
11 | 952-4607140 | Рукав высокого давления | |
13 | 680-4607140-04 | Рукав высокого давления | |
15 | 80-4604010 | Заказать | Привод насоса |
16 | 85-4604030 | Заказать | Вилка |
17 | 50-4604044 | Пластина | |
18 | 85-4607435 | Кронштейн | |
19 | 85-4608010 | Корпус гидросистемы | |
20 | 85-4607060-Б | Заказать | Труба |
21 | 85-4607080-Б | Заказать | Труба |
23 | 80-4607040-04 | Кронштейн | |
24 | Д80-4607100 | Патрубок | |
29 | А61-030-А1 | Заказать | Палец |
30 | Н.036.12.010 | Заглушка | |
31 | ПН.036.83.040 | Рукав высокого давления | |
32 | НР10-3МХ0041А0 | Муфта | |
32 | М036.50Б.10 | Корпус левый | |
34 | НШ32Д-3 | Насос шестеренный | |
34 | НШ32М-3 | Насос | |
34 | НШ32УКФ-3 | Насос шестеренный | |
34 | НШ32МА-3 | Насос | |
34 | НШ32УВ-3 | Насос | |
35 | РП70-1221С | Распределитель | |
35 | РП70-890 | Распределитель | |
36 | ХС-31 | Хомут | |
39 | Р85-4607063 | Шланг | |
41 | 952-4607061 | Заказать | Штуцер |
43 | 36-1022054-А | Прокладка | |
44 | 1221-1802091 | Пробка резьбовая | |
45 | 70-3401093 | Заказать | Наконечник |
46 | 85-3407101 | Заказать | Патрубок |
49 | 70-4604037 | Прокладка | |
55 | 70-4607144 | Шайба | |
57 | 50-4607032-Б | Заказать | Кронштейн |
58 | 50-4607096-А | Патрубок | |
59 | 50-4607097 | Заказать | Прокладка |
60 | 50-4607099 | Крышка | |
63 | 40-4607032 | Заказать | Болт |
65 | 40-4607037 | Заказать | Болт |
69 | 70-4608019 | Крышка | |
70 | 85-4608021 | Пробка | |
71 | 70-1405089 | Заказать | Штуцер |
72 | 70-4608033 | Прокладка | |
77 | 530-4614029 | Заказать Заказать | Угольник |
79 | Д18-051 | Болт | |
84 | Н.036.04.011 | Заказать | Штуцер ввертной |
90 | М8-6gx16.88.35.019 | Болт | |
91 | М8-6gx20.88.35.019 | Болт | |
92 | М8-6gx25.88.35.019 | Болт | |
93 | М8-6gx30.88.35.019 | Болт | |
97 | М10-6gx20.88.35.019 | Болт | |
98 | М10-6gx30.88.35.019 | Болт | |
99 | М10-6gx40.88.35.019 | Болт | |
101 | М12-6gx35.88.35.019 | Болт | |
103 | М8-6Н.6.019 | Гайка | |
104 | М10-6Н.6.019 | Гайка | |
106 | С8.01.019 | Шайба | |
107 | М103р/6gx20.66.019 | Шпилька | |
108 | М103р/6gx35.66.019 | Шпилька | |
112 | 013-017-25-1-4 | Заказать | Кольцо |
113 | 017-022-30-1-4 | Кольцо | |
117 | 035-040-30-1-4 | Кольцо | |
120 | Шплинт3,2х18.019 | Шплинт | |
123 | Шайба8Т | Шайба 8Т | |
124 | 10.ОТ | Шайба | |
125 | 12.ОТ | Шайба | |
128 | 1,0-О-С | Проволока | |
133 | РМ14 | Шайба | |
133 | Д18-055-А | Заказать | Шайба |
134 | 40-4607038-А | Заказать | Шайба |
134 | РМ1/2 | Шайба | |
135 | 40-4607033-А | Заказать | Шайба |
135 | РМ24 | Шайба |
Содержащиеся в справочниках-каталогах запасные части и детали не предлагаются к продаже, а носят исключительно информационный характер