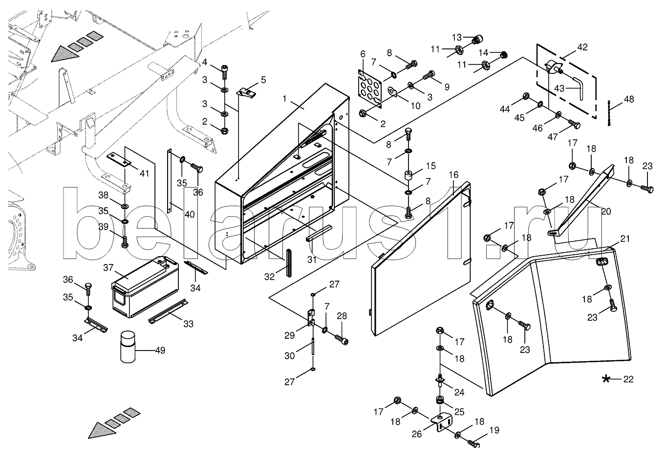
Каталог запасных частей к технике: KRONE BIG-X-650. Battery box

1
2
2
3
3
3
4
5
6
7
7
7
7
8
8
8
9
10
11
11
11
11
13
14
14
14
15
16
17
17
17
17
17
18
18
18
18
18
18
18
18
18
19
20
21
22
23
23
23
24
25
26
27
27
28
29
30
31
32
33
34
34
35
35
35
36
36
37
38
39
40
41
42
43
44
45
46
47
48
49
Позиция на иллюстрации | Заводской номер детали | Название детали | |
---|---|---|---|
1 | 002177512 | Battery box | |
2 | 009087020 | Locknut | |
3 | 009105001 | Washer | |
4 | 009030140 | Allen screw | |
5 | 009242190 | Clamping lock | |
6 | 002170000 | Connecting plate | |
7 | 009099081 | Detent edged washer | |
8 | 009006120 | Hex head bolt | |
9 | 009036520 | Allen screw | |
10 | 002170140 | End plate | |
11 | 200802960 | Locknut | |
11 | 200802940 | Locknut | |
13 | 003027900 | Screw connection | |
14 | 200802950 | Blind plug | |
14 | 200802930 | Blind plug | |
15 | 003028990 | Spacing isolator | |
16 | 002177521 | Box door | |
17 | 009087060 | Locknut | |
18 | 009106030 | Washer | |
19 | 009006140 | Hex head bolt | |
20 | 003601370 | Support | |
21 | 002168170 | Batterie-box protection | |
22 | 009403750 | Repairing set for plastics- beige | |
23 | 009006160 | Hex head bolt | |
24 | 002175841 | Sprig | |
25 | 009242070 | Cable bushing | |
26 | 002175831 | Angle | |
27 | 009115900 | Lock washer | |
28 | 009030751 | Allen screw | |
29 | 002232211 | Hinge | |
30 | 002232221 | Axle | |
31 | 009251110 | Edge protection-Id.-no.= 1m | |
32 | 009386941 | Rubber profile-Id.-no.= 1m | |
33 | 002305283 | Battery support | |
34 | 002177721 | Battery support | |
35 | 009099091 | Detent edged washer | |
36 | 009006320 | Hex head bolt | |
37 | 003026480 | Battery | |
38 | 009104140 | Washer | |
39 | 009006360 | Hex head bolt | |
40 | 003026760 | Bonding braid | |
41 | 002177730 | Twixt rubber | |
42 | 003025080 | Main power cut-off | |
43 | 003022290 | Control key | |
44 | 009082080 | Hex nut | |
45 | 009099061 | Detent edged washer | |
46 | 009104111 | Washer | |
47 | 009006070 | Hex head bolt | |
48 | 009226512 | Chain | |
49 | 270037200 | Battery terminal protection spray |
Содержащиеся в справочниках-каталогах запасные части и детали не предлагаются к продаже, а носят исключительно информационный характер